Appartement te huur in Beveren-Kruibeke-Zwijndrecht

€ 1.175
Hof ter Wellelaan 8 / 11
9120 Beveren-Kruibeke-Zwijndrecht
Nieuw

Nieuwbouwappartement op de tweede verdieping met terras en twee slaapkamers

Ontdek dit moderne appartement op de tweede verdieping, waar comfort, licht en energiezuinig wonen perfect samenkomen.

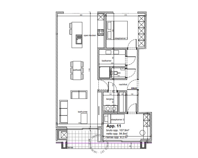
Indeling: inkom, berging, apart toilet, badkamer met inloopdouche, lavabomeubel en handdoekradiator, ruime woonkamer met open keuken, en 2 comfortabele slaapkamers.

Buiten: privatief terras.

Parkeren & berging: ondergrondse autostaanplaats en privatieve berging met elektriciteit inbegrepen in de huurprijs.

Afwerking: volledig geschilderd opgeleverd, voorzien van armaturen, gordijnrails en lichte deuren.

Duurzaam & energiezuinig: verwarming via geothermie en zonnepanelen per appartement, E-peil = 20.

Algemene onkosten: 60 euro / maand

Benieuwd naar dit project? Neem contact met ons op voor meer informatie of een rondleiding:
03/775.44.10
info@immo-jet.be
Appartement te huur / Beveren-Kruibeke-Zwijndrecht

Details

Verdieping 2
Bouwjaar 2025
Lift Ja
Totale opp. grond 107 m²
Bewoonbare opp. 94 m²
Appartement te huur / Beveren-Kruibeke-Zwijndrecht

Indeling

Gelijkvloers

Woonkamer
Keuken
Badkamer
2x Slaapkamer
WC
Terras
8 m²

Ruimtelijke ordening

Stedenbouwkundige bestemming Niet ingegeven
Dagvaarding voor stedenbouwkundige overtreding Niet ingegeven
Bouwvergunning Niet ingegeven
Verkavelingsvergunning Niet ingegeven
Voorkooprecht Neen
Beschermd erfgoed Niet ingegeven
Renovatieplicht Niet ingegeven

Financiële info

Prijs € 1.175

Comfort

  • Internet
  • Lift
  • Telefoon
  • Zonnepanelen
Appartement te huur / Beveren-Kruibeke-Zwijndrecht
Appartement te huur / Beveren-Kruibeke-Zwijndrecht
Appartement te huur / Beveren-Kruibeke-Zwijndrecht
Appartement te huur / Beveren-Kruibeke-Zwijndrecht

Interesse? Contacteer ons

Gelieve een geldige voornaam in te geven.
Gelieve een geldige naam in te geven.
Gelieve een geldig e-mailadres in te geven.
Gelieve een geldige telefoon- en/of GSM-nummer in te geven.