Appartement te huur in Beveren-Kruibeke-Zwijndrecht

€ 1.175
Stationsstraat 88 / 203
9120 Beveren-Kruibeke-Zwijndrecht

Nieuwbouwappartement op de tweede verdieping met terras en twee slaapkamers

Ontdek dit moderne appartement op de tweede verdieping, waar comfort, licht en energiezuinig wonen perfect samenkomen.

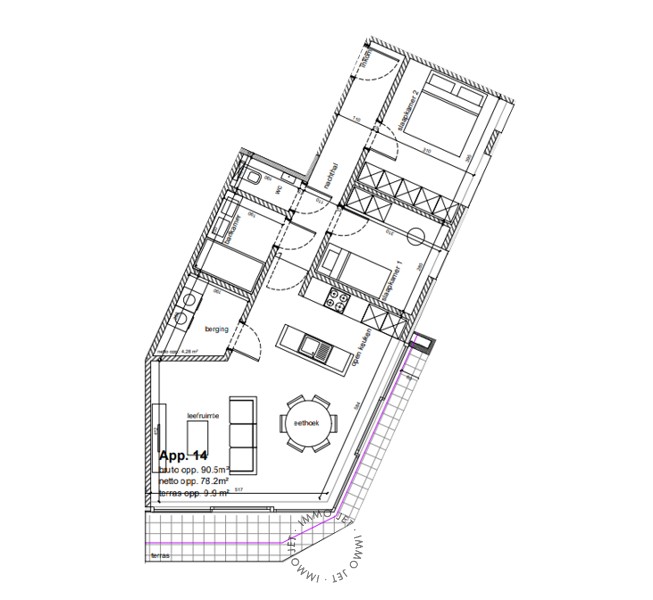
Indeling: inkom, 2 comfortabele slaapkamers, apart toilet, badkamer met inloopdouche, lavabomeubel en handdoekradiator, berging, ruime woonkamer met open keuken.

Buiten: privatief terras.

Parkeren & berging: ondergrondse autostaanplaats en privatieve berging met elektriciteit inbegrepen in de huurprijs.

Afwerking: volledig geschilderd opgeleverd, voorzien van armaturen, gordijnrails en lichte deuren.

Duurzaam & energiezuinig: verwarming via geothermie en zonnepanelen per appartement, E-peil = 20.

Algemene onkosten: 60 euro / maand

Benieuwd naar dit project? Neem contact met ons op voor meer informatie of een rondleiding:
03/775.44.10
info@immo-jet.be
Appartement te huur / Beveren-Kruibeke-Zwijndrecht

Details

Verdieping 2
Bouwjaar 2025
Lift Ja
Totale opp. grond 90 m²
Bewoonbare opp. 78 m²
Appartement te huur / Beveren-Kruibeke-Zwijndrecht

Indeling

Gelijkvloers

Woonkamer
Keuken
Badkamer
2x Slaapkamer
WC
Terras
9 m²

Ruimtelijke ordening

Stedenbouwkundige bestemming Niet ingegeven
Dagvaarding voor stedenbouwkundige overtreding Niet ingegeven
Bouwvergunning Niet ingegeven
Verkavelingsvergunning Niet ingegeven
Voorkooprecht Niet ingegeven
Beschermd erfgoed Niet ingegeven
Renovatieplicht Niet ingegeven

Financiële info

Prijs € 1.175

Comfort

  • Internet
  • Lift
  • Telefoon
  • Zonnepanelen
Appartement te huur / Beveren-Kruibeke-Zwijndrecht
Appartement te huur / Beveren-Kruibeke-Zwijndrecht
Appartement te huur / Beveren-Kruibeke-Zwijndrecht
Appartement te huur / Beveren-Kruibeke-Zwijndrecht
Appartement te huur / Beveren-Kruibeke-Zwijndrecht
Appartement te huur / Beveren-Kruibeke-Zwijndrecht
Appartement te huur / Beveren-Kruibeke-Zwijndrecht
Appartement te huur / Beveren-Kruibeke-Zwijndrecht
Appartement te huur / Beveren-Kruibeke-Zwijndrecht
Appartement te huur / Beveren-Kruibeke-Zwijndrecht
Appartement te huur / Beveren-Kruibeke-Zwijndrecht
Appartement te huur / Beveren-Kruibeke-Zwijndrecht
Appartement te huur / Beveren-Kruibeke-Zwijndrecht
Appartement te huur / Beveren-Kruibeke-Zwijndrecht
Appartement te huur / Beveren-Kruibeke-Zwijndrecht
Appartement te huur / Beveren-Kruibeke-Zwijndrecht
Appartement te huur / Beveren-Kruibeke-Zwijndrecht

Interesse? Contacteer ons